REHABILITACIÓN DE VIVIENDA SOCIAL EN PRIARANZA DEL BIERZO
Rehabilitación de la Vivienda dentro del programa REHABITARE, de la Junta de Castilla y León, que tiene como objetivo incrementar el parque público de alquiler social de la Comunidad y fijar población en el medio rural, a través de la recuperación de inmuebles en desuso que sean de titularidad municipal. Su finalidad prioritaria es atender las necesidades habitacionales de los colectivos de especial protección, particularmente de los jóvenes
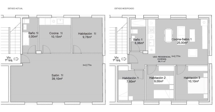
Este proyecto consiste en una reforma integral de la vivienda consiguiendo un espacio adecuado con el mínimo coste económico, pero manteniendo las máximas exigencias en cuanto a calidad y confort.
PRESUPUESTO: 65.500 €
SUPERFICIE CONSTRUIDA: 102 m2
- CLIENT Privado
- YEAR 2024
- CATEGORY Edificación
- TAGS





